MY BOX
miniMA
シンプルスタイル
コムスタイル
S-シリーズ
土地情報
アフター/保証
トップページ
商品プラン
商品プラン
MY BOX
miniMA
シンプルスタイル
コムスタイル
S-シリーズ
バルーン住宅の特長
施工事例
住んでみてからの声
バルーン住宅の強み
土地情報
アフター/保証
商品ラインナップ
16.53
坪
(54.65
㎡
)
建物価格 1,171
万円~
※付帯工事費別途 ※地域により金額の差が生じる場合があります ※2025/2/20時点
No.1【1LDK】
※パースはイメージです。一部内容が異なる場合がございます。
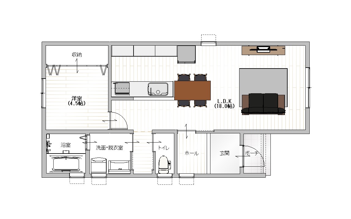
1F平面図
住宅ローンシミュレーション
建物価格
1,171
万円~
借入金
1,180
万円
月々
31,287
円
※一般例:頭金0円 ボーナス0円 35年ローン 0.625%変動金利 ※付帯工事費別途 ※地域により金額の差が生じる場合があります
バルーン住宅について
会社概要
バルーン住宅の特長
お客様とのお約束
安さの秘密
スタッフ紹介
スタッフブログ
ニュース
カタログダウンロード
商品について
設計メニュー
施工事例
住んでみてからの声
イベント情報
ご来場予約
土地情報
アフター/保証
販売物件情報
住宅ローン相談
Information
-
✕