【福知山市長田大野下】3,200万円(月々支払い例:79,784円) - バルーン住宅|福知山・亀岡のローコスト住宅専門店
公式LINE イベント情報 来場予約

物件販売情報

【福知山市長田大野下】3,200万円(月々支払い例:79,784円)

所在地

福知山市長田大野下/MAPはこちら

金額

3,200万円(税込)

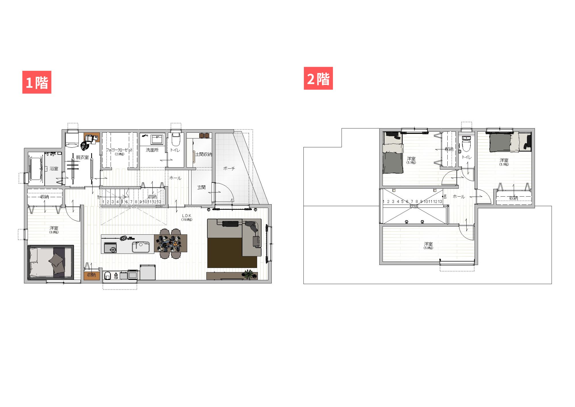
間取り

4LDK+S

仕様

販売価格:3,200万円
月々支払例:79,784円(40年返済 0.925%の場合)

<物件特長>
●土地+建物+カーテン+照明+リビングエアコン付き『そのまま住めます!』
●土間収納付き玄関
●接道:南18.00m幅(接道幅10.60m)

<周辺環境>
●PLANT-3 福知山店(2,400m/で5分)
●フレッシュバザール 東野パーク店(約2,900m/車6分)
●石原駅(約1,900m/車4分)

<物件概要>
■駐車3台可 ■JR山陰本線『石原』歩22分、JR山陰本線『福知山』バス11分なかよし広場歩8分、■戸建て ■木造2階建 ■土地面積 209.9m2(63.49坪) / 建物面積 110.54m2(33.43坪) ■2025年8月築 ■宅地/準工業/市街化区域 ■建ぺい/容積率 60%/200% ■取引態様 売主

モデルハウス見学会予約
Information